Moving in & up

Encompassing more than 300,000 RSF across two historic buildings, 470 Park Avenue South provides ample opportunity for innovative companies to shape their spaces to their individual needs. Efficient 10,000 SF boutique floor plates with dramatic views and convenient access to green spaces, transit and local amenities raise the bar on working.

02 10,569 SF 03 10,534 SF 04 10,427 SF 05 10,247 SF 06 10,427 SF 06 9,936 SF 07 10,427 SF 08 10,427 SF 09 10,427 SF 10 10,427 SF 11 10,427 SF 12 11,176 SF Mezzanine Mezzanine Ground Floor Retail Lower Level Ground Floor Retail 02 9,936 SF 03 9,936 SF 04 9,936 SF 05 9,936 SF 07 9,936 SF 08 9,936 SF 09 9,936 SF 10 9,936 SF 11 9,936 SF 12 9,936 SF 14 9,703 SF 15 9,771 SF 16 9,771 SF Pre-Built 17 9,780 SF 18 3,973 SF SOUTH BUILDING NORTH BUILDING LOBBY

Pre-built to Impress

Reception View

A lounge-style reception area features oak flooring, pendant beam lighting and a central open-plan design with seamless transitions into the main workspace.

Tomorrow's Talking Point

Conference View

The three perimeter conference rooms incorporate exposed brick, original blackened steel columns, linen stitch carpeting, colorful linear pendant lighting and black-paned glass interior walls.

A Place to Take Five

Pantry View

Taking its cues from cafe culture, the pantry area includes a marble countertop and island, high-end appliances and nature-inspired flooring, lighting and feature walls.

TYPICAL TESTFIT

High-Density
North Tower

~10,500 RSF

WORKSPACE
SEATS
Executive Office
1
Benching
70
Reception
1
Total Head Count
72
COLLABORATIVE SPACE
Conference (10 pp)
1
Conference (8 pp)
1
Meeting Rooms
2
Phone Rooms
4
SUPPORT
Pantry
1
Coat Closet
2
Copy Area
1
STO. CL.
1
TYPICAL TESTFIT

Creative
North Tower

~10,500 RSF

WORKSPACE
SEATS
Executive Office
1
Benching
46
Total Head Count
47
COLLABORATIVE SPACE
Conference (10 pp)
1
Meeting Rooms
3
Phone Rooms
4
SUPPORT
Pantry
1
Coffee Bar
1
Coat Closet
1
Copy Area
1
STO. CL.
1
TYPICAL TESTFIT

High-Density
South Tower

~9,800 RSF

WORKSPACE
SEATS
Executive Office
1
Private Office
1
Benching
83
Reception
1
Total Head Count
86
COLLABORATIVE SPACE
Conference (10 pp)
1
Conference (6 pp)
1
SUPPORT
Pantry
1
Coat Closet
1
Copy Area
1
STO. CL.
1
STO./ IT CL.
1
TYPICAL TESTFIT

Creative
South Tower

~9,800 RSF

WORKSPACE
SEATS
Executive Office
1
Benching
58
Total Head Count
59
COLLABORATIVE SPACE
Conference (10 pp)
1
Conference (8 pp)
1
Ad Hoc Meeting Area
2
Phone Rooms
4
SUPPORT
Pantry
1
Coffee Bar
1
Coat Closet
1
Copy Area
1
STO. CL.
1
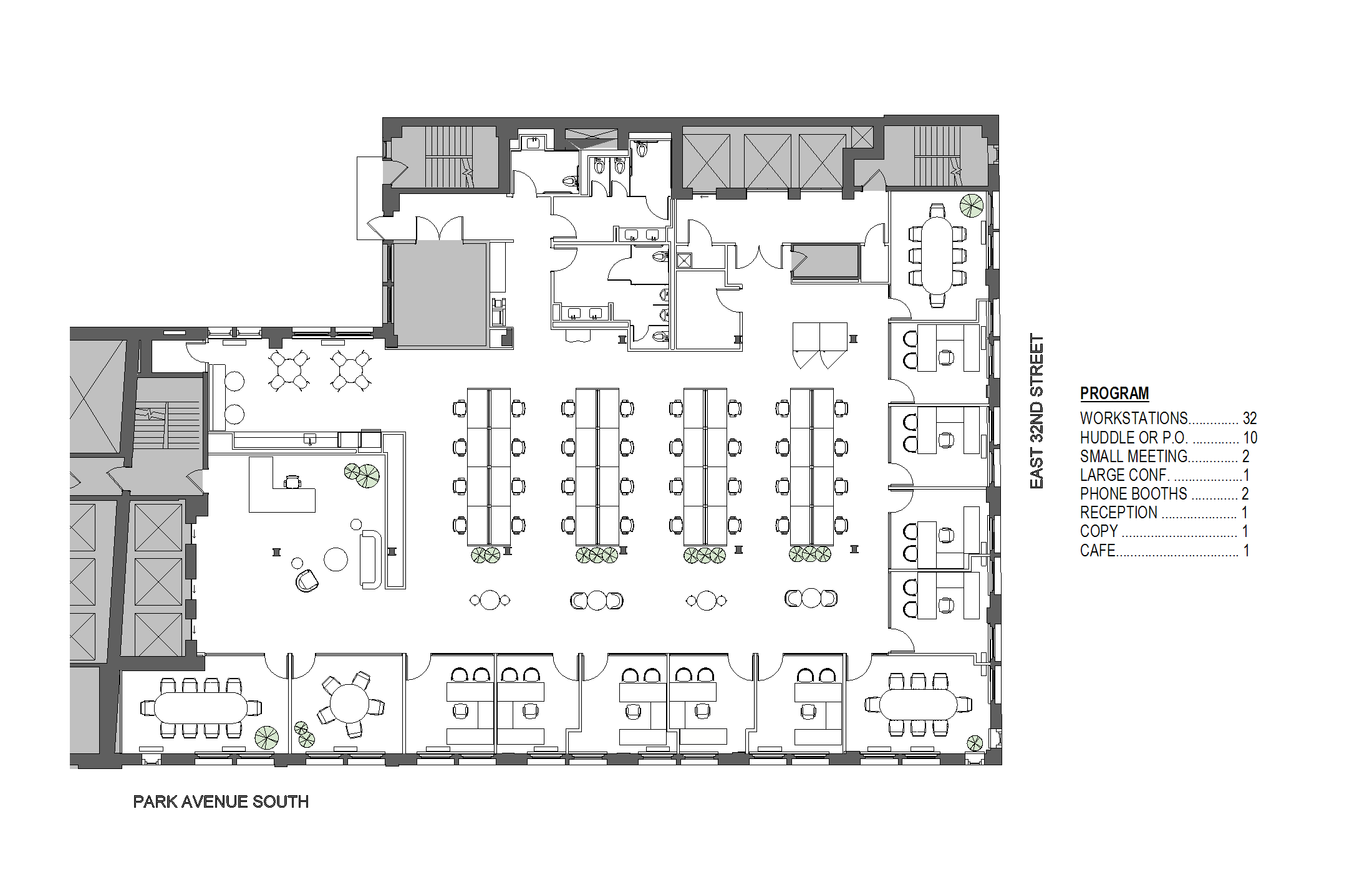
Typical Test Fit

Combined
North & South Tower

~20,300 RSF

WORKSPACE
SEATS
Executive Office
1
Private Office
5
Benching
120
Reception
1
Total Head Count
127
COLLABORATIVE SPACE
Conference (10 pp)
1
Conference (12 pp)
2
Phone Rooms
4
SUPPORT
Pantry
1
Coat Closet
2
Copy Area
1